Deweloper funduje zieleń na miejskim skwerze

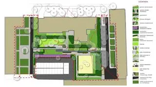
Tak będzie wyglądał skwer po modernizacji
Tak będzie wyglądał skwer po modernizacji
Źródło: | Pleneria
Tuż obok wyremontowanej ulicy Chłodnej, w miejscu PRL-owskiego biurowca stanął nowoczesny apartamentowiec. Teraz plac budowy zmieni się w zielony skwer, dostępny dla wszystkich.

Skwer między Białą, Ogrodową i Chłodną nie należał wcześniej do szczególnie urokliwych zakątków. Wprawdzie kilka lat temu wyremontowano plac zabaw, ale stare garaże i zaniedbane podwórko były dla niego raczej smutnym tłem.

Dwa lala temu część podwórka zajęła firma Yareal - inwestor powstającego tuż obok apartamentowca wynajął teren od wolskiego Zakładu Gospodarowania Nieruchomościami i urządził na nim zaplecze budowy. W umowie zawarto jednak dodatkowy warunek - po zakończeniu prac teren miał zostać uporządkowany i urządzony.

Ogrodzą, ale nie zamkną

Budowa jest już na ostatniej prostej, trwa sprzedaż mieszkań, a na dawnym zapleczu zaczął się ruch. Firma Pleneria przygotowuje się do modernizacji według własnego projektu. Wiadomo, że plac zabaw nie będzie zmieniany. Wokół pojawią się za to nowe krzewy i drzewa, a także ławki, kosze na śmieci i latarnie.

Mieszkańcy okolicy zastanawiają się, czy teren nie będzie ogrodzony i dostępny tylko dla właścicieli apartamentów w nowym budynku. I tu sprawa się nieco kompikuje. - Pojawi się ogrodzenie, ale zamykane będzie tylko na noc, żeby chronić teren przed wandalami. W dzień teren będzie otwarty i ogólnodostępny - zapewniają zgodnie przedstawiciele dewelopera i dzielnicy Wola. - Zastanawiamy się też nad zainstalowaniem monitoringu - dodaje Monika Beuth-Lutyk, rzecznik dzielnicy.

roody/par

Czytaj także: