Łącznik linii metra jest za wąski. "W ogóle nie powinno go być"

Przejście przez łącznik (nagranie przyspieszone 2x)
Źródło: Mateusz Szmelter / tvnwarszawa.pl
Przejście między I a II linią metra, na poziomie peronów, jest zbyt wąskie. W godzinach szczytu tłok stwarza zagrożenie dla pasażerów. Ratusz dopiero po kilku latach od budowy szuka rozwiązania. Odpowiedzialni za decyzję o kształcie łącznika dziś umywają ręce.

Ścisk w łączniku pomiędzy I a II linią metra to codzienność. Żeby przedostać się na skróty, trzeba przejść przez klatkę schodową złożoną ze schodów zwykłych i ruchomych. Miejsca jest mało, więc pasażerowie w godzinach szczytu poruszają się powoli, a do tego tłoczą się w łączniku.

"Duże potoki pasażerów"

Na problem uwagę zwróciły władze Warszawy. Sytuacja jest analizowana w Metrze Warszawskim i Zarządzie Transportu Miejskiego. Wiceprezydent stolicy Robert Soszyński, w odpowiedzi na interpelację radnego Macieja Wyszyńskiego przyznał, że w łączniku są "duże potoki pasażerów". Podkreślił również, że prognoza ruchu wykonana w ubiegłym roku wskazała, że do 2025 roku (linia jest rozbudowywana w kierunku Bemowa i Targówka) pasażerów w tym miejscu będzie jeszcze więcej.

"W związku z tym Zarząd Transportu Miejskiego w Warszawie zaplanował wykonanie analizy techniczno-ekonomicznej poprawy "łącznika" wraz z koncepcją jego przebudowy. Celem analizy będzie opracowanie rozwiązania maksymalizującego przepustowość przejścia (w określonych warunkach i sytuacjach), z uwzględnieniem kwestii bezpieczeństwa" – wyjaśnił Soszyński.

Ale już teraz wiceprezydent mówi, że "nie ma możliwości, by konstrukcja przejścia mogła zostać poszerzona". Nic nie da nawet likwidacja windy, bo dolny bieg szerszych schodów trafiałby w bok podestu górnego biegu.

"Katalog ewentualnych działań naprawczych będzie opierał się na dwóch grupach interwencji - technicznej (prace związane z przebudową przejścia) i organizacyjnej (określenie docelowej organizacji ruchu pieszego uwzględniającej uwarunkowania techniczne i bezpieczeństwo pasażerów)" - pisze ogólnie Soszyński.

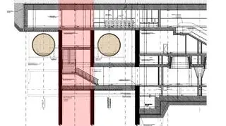
Przekrój łącznika

"Tego łącznika nie powinno być"

Jak zwracają uwagę urzędnicy, tłok w tym miejscu może mieć jeszcze jedną przyczynę. Zdaniem urzędników, problemem jest "nieuzasadnione wyłączanie schodów ruchomych". Z informacji Metra Warszawskiego wynika, że przyciskiem "stop" zatrzymywane są nawet kilkadziesiąt razy dziennie.

"Każdego dnia powszedniego w łączniku pomiędzy liniami metra notowany jest ruch pasażerski na poziomie około 50 tys. pasażerów, co w połączeniu z częstym i nieuzasadnionym wyłączaniem schodów powoduje krzyżowanie się potoków pasażerskich i blokowanie korzystania ze schodów przez grupy wchodzące jednocześnie z obu stron na zatrzymane schody" - twierdzi Soszyński.

Pojawiają się też głosy, że łącznik w ogóle nie powinien był powstać. Takiego zdania jest rzecznik Astaldi, firmy która była w konsorcjum budującym centralny odcinek II linii metra. "W tej sprawie mam bardzo kontrowersyjną opinię. Tego łącznika nie powinno być. Nie ma fizycznej możliwości by zmieścić tam cały ruch pomiędzy 2 stacjami 2 pełnych linii. Jest to jedno z rozwiązań pozornie przyjaznych, ale generujących więcej problemów niż korzyści" - napisał w listopadzie ubiegłego roku na Twitterze.

Mogłyby być. W tej sprawie mam bardzo kontrowersyjną opinię. Tego łącznika nie powinno być. Nie ma fizycznej możliwości by zmieścić tam cały ruch pomiędzy 2 stacjami 2 pełnych linii. Jest to jedno z rozwiązań pozornie przyjaznych, ale generujących więcej problemów niż korzyści.— Mateusz Witczyński (@mwitcz) 29 listopada 2018

Jak zaznacza w rozmowie z tvnwarszawa.pl, to jego prywatna ocena. - Ilość miejsca na łącznik ograniczona jest szerokością rozstawu tuneli metra, w części płytszej musi on mieścić się pomiędzy tunelami pierwszej, a głębszej drugiej linii metra - najwęższym miejscem jest zaś spocznik centralny, który musi mieścić się w prostokącie wyznaczonym przez krzyżujące się cztery tunele - tłumaczy.

I dodaje: - Dlatego też, formalnie łącznik jest jedynie dodatkowym połączeniem pomiędzy liniami, a główny ciąg wyznaczono przez antresolę.

Tyle, że "główny ciąg" oznacza wejście o jedną kondygnacje wyżej, przejście przez bramki, przejście przez antresolę, kolejne bramki i zejście na drugi peron. Jak to możliwe, że na etapie projektowania nie zaplanowano wygodnego i odpowiednio szerokiego połączenia peronów? O to zapytaliśmy ówczesnego wiceprezydenta Warszawy, który odpowiadał za inwestycję.

- Wówczas kontrowersyjne było to, że w ogóle nie było tego łącznika. Podnoszono głosy, że bez niego trzeba by chodzić pomiędzy peronami na około. Łącznik został więc doprojektowany, a jego przepustowość jest efektem maksymalnego wykorzystania przestrzeni, jaka jest pomiędzy nakładającymi się na siebie tunelami pierwszej i drugiej linii metra - tłumaczy teraz Jacek Wojciechowicz.

W ocenie byłego wiceprezydenta rozwiązanie z łącznikiem jest wygodniejsze. - Nie trzeba z niego korzystać, to jest po prostu możliwość, można też iść dookoła. Nie jest też tak, że jak druga linia metra zostanie wydłużona, to w jednym czasie na stacji Świętokrzyska przybędzie pięć razy więcej osób - przekonuje.

"Efekt braku wiedzy"

Wojciechowicz wraca też do lat 90. ubiegłego wieku. - Warto wziąć pod uwagę, że miejsce, które pozostało na łącznik, jest efektem braku wiedzy w momencie budowy I linii metra, na której stacji będzie krzyżowała się z drugą. W latach 90. nie było to przesądzone - dodaje Wojciechowicz.

Dlaczego jednak nie przewidziano w tym miejscu szerszego rozstawu tuneli II linii, dzięki czemu łącznik mógłby być szerszy? Zdaniem Wojciechowicza, to nie zmieniłoby wiele, bo rozstaw tuneli I linii metra, które były już gotowe i tak definiuje ilość miejsca. - Tę sprawę można by rozwiązać na etapie budowy stacji Świętokrzyska I linii metra - uważa Wojciechowicz.Jak poinformowało nas Metro Warszawskie, stacja Świętokrzyska (na I linii) została oddana do użytku w 2001 roku, a studium uwarunkowania mówiące wstępnie o przebiegu II linii metra powstało pięć lat później.

Informacje potwierdza również organizacja SISKOM. "Rozważano wiele koncepcji przebiegu II linii metra. Ostatecznie 14 września 2006 roku Komisarz Warszawy Kazimierz Marcinkiewicz ogłosił połączenie wcześniej planowanej II i III linii metra w jedną inwestycję - czytamy na stronie organizacji zajmującej się komunikacją miejską, która podaje, że przecięcie zaplanowano koło stacji Świętokrzyska.

"To kwestia norm"

W kontekście trwającej rozbudowy II linii metra obawy może budzić również sam peron stacji Świętokrzyska. Dominujące kolumny i szyby wind czy też schodów ruchomych zmniejszają przestrzeń, którą mogą poruszać się pasażerowie. W efekcie muszą przeciskać się przy krawędzi peronu. Czy w kontekście wydłużenia II linii metra, problemem nie będzie natłok pasażerów, którzy będą dojeżdżać na Świętokrzyską?

- Projekty robią osoby z uprawnieniami, to jest kwestia określonych norm technicznych przy projektowaniu. Krótko mówiąc stacja Świętokrzyska została zrobiona i odebrana. Projektanci doskonale wiedzieli, że II linia metra nie kończy się na centralnym odcinku - zaznacza Jacek Wojciechowicz. - W ramach możliwości fizycznych i technicznych stacja jest zbudowana w sposób optymalny - przekonuje Wojciechowicz.

Z pytaniami o projektowanie łącznika i samej stacji Świętokrzyska zwróciliśmy się do firmy ILF, która stworzyła projekt wykonawczy centralnego odcinka II linii metra. Poprosili o pytania drogą mailową, czekamy na odpowiedź.

ran/pm

Czytaj także: