Wodniacki ośrodek na cyplu. Przeniosą baraki strażników miejskich

Marek Piwowarski o przenosinach baraków
Źródło: Marcin Gula, tvnwarszawa.pl
Jest pomysł na zagospodarowanie baraków, które wkrótce opuści straż miejska. Stojące przy ul. Czerniakowskiej drewniaki mają zostać przeniesione na Cypel Czerniakowski i stać się bazą sportów wodnych. Na uwolnionej przestrzeni ma natomiast powstać nowy dwupoziomowy plac. Pierwsi ujawniamy jego projekt.

Stróże prawa zajmują budynki przy Wisłostradzie od 1995 roku, ale nie byli ich pierwszymi lokatorami. - To baraki po jugosłowiańskich budowniczych błękitnego wieżowca na placu Bankowym – wspomina Marek Piwowarski, pełnomocnik ratusz ds. Wisły.

Strażnicy w odwrocie

Ich lokalizację wybrano wyjątkowo niefortunnie. Ku rozpaczy varsavianistów stanęły dokładnie na historycznej Osi Stanisławowskiej. W założeniu tymczasowa siedziba, jest "domem" strażników prawie 20 lat. Wyprowadzka była jednak nieuchronna i już się rozpoczęła.

- Nie wyznaczono nam ostatecznego terminu, ale część pawilonów została już opróżniona. Przenosimy się do budynków przy Kobielskiej i Sołtyka. Trwają tam ostatnie prace budowlane - mówi Monika Niżniak, rzeczniczka stołecznej straży miejskiej. Przy Czerniakowskiej wciąż pracuje około stu osób. Jak będą wspominać to miejsce? – Na pewno z sentymentem, ale należy pamiętać, że nie były to obiekty biurowe gwarantujące odpowiedni standard pracy. W okresie zimowym było ciężko – przyznaje Niżniak.

Wodniacy w natarciu

Wszystko wskazuje na to, że koniec historii straży miejskiej przy Czerniakowskiej, nie będzie oznaczał śmierci samych budynków. Baraki mają zostać rozebrane i przeniesione na Cypel Czerniakowski. Zlecona przez miasto ekspertyza obejmująca krokwie i ściany, wykazała, że stan techniczny na to pozwala, choć należy brać pod uwagę konieczność wymiany części elementów ciesielskich.

Postawione bliżej rzeki drewniaki mają stać się siedzibą kajakarzy, wioślarzy, fundacji i stowarzyszeń popularyzujących aktywny wypoczynek nad Wisłą. Część budynków będzie służyć do przechowywania kajaków, łodzi czy rowerów wodnych, w innych znajdzie się miejsce na gastronomię i sklep ze sprzętem dla wodniaków.

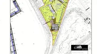
Projekt przystani na Cyplu Czerniakowskim

O wizji ośrodka na Cyplu Czerniakowskim

- Chcielibyśmy uczynić to miejscem, gdzie można animować wioślarstwo i kajakarstwo. Szczególnie to drugie intensywnie się rozwija. Działa wiele organizacji, które nie mają żadnego zaplecza nad Wisłą. Są sierotami, chodzą o jednego klubu do drugiego – opowiada Piwowarski.

Na razie nie wiadomo, kto będzie gospodarzem przystani. Jak tłumaczy pełnomocnik, rysują się dwie koncepcje. Pierwsza zakłada, że terenem będzie zarządzał w imieniu miasta jeden operator, w drugiej – będzie ich więcej, a organizacje odpowiadające za poszczególne domki będą wyłaniane w konkursach.

Miasto chciałoby ograniczyć się do uzbrojenia terenu (woda, kanalizacja, energia elektryczna), a koszty przenosin baraków przerzucić na ich przyszłych dzierżawców. Urzędnicy sondują wśród potencjalnych partnerów realność takiego rozwiązania.

Dwupoziomowy plac

Projekt przystani i nowego placu zlecono firmie tomcat.arch.design z Piaseczna, która w 2011 roku wygrała konkurs architektoniczny na koncepcję zagospodarowania Portu i Cypla Czerniakowskiego. Na początku grudnia wydano decyzję o warunkach zabudowy dla placu – to pierwszy istotny dokument w procedurze inwestycyjnej.

Skwer na przedłużeniu Kanału Piaseczyńskiego ma mieć dwa poziomy. Z górnego na dolny będzie można dostać się schodami lub ukrytą między drzewami windą. Na obu poziomach będą mogły powstać sezonowe pawilony - projekt nie przesądza o ich wyglądzie i liczbie. Na środku niższej kondygnacji zaplanowano także basen z fontanną.

Projekt placu na Osi Stanisławowskiej

Rośliny zatrzymają muł

Z górnej części placu na teren Cypla Czerniakowskiego prowadzić będzie kładka. Ale nie będzie to jedyne połączenie dla pieszych. Kilka metrów niżej znajdzie się bowiem system mniejszych mostków i przejść, a pod nimi biofiltr. Pod tą nazwą kryje się nietypowa instalacja oczyszczająca wpadającą do portu wodę z Łazienek i łuku siekierkowskiego. Biofiltr ma zapobiec zamulaniu basenu.

- Woda będzie wyprowadzana meandrującym ciekiem. W pierwszej części osadnika będą zbierać się piaszczyste osady. Inne zanieczyszczenia będą przechwytywać rośliny, które będą potem regularnie koszone. Dzięki temu, woda będzie podczyszczona, wpływając do basenu będzie miała zdecydowanie lepsze parametry – tłumaczy Marek Piwowarski.

Umowa z wykonawcą biofiltra została już podpisana i, jeśli pogoda pozwoli, pracę ruszą jeszcze w tym roku. Data przenosin baraków i budowy placu nie jest na razie znana. Urzędnicy szacują, że cała inwestycja pochłonie ok. 3,5 mln złotych.

Piotr Bakalarski

O funkcji biofiltra

Czytaj także: